/
【外観】
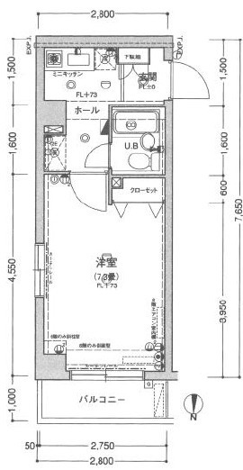
- 物件名
- エクセリア阿佐ヶ谷
- 価格
- 7.5万円
- 管理/共益費
- 10,000円
- 築年月
- 1998年4月(築27年)
- 総戸数
- 27戸
- 設備条件
-
- エレベーター
- 耐震構造
- CATV
- インターネット対応
- 宅配ボックス
- 設備(その他)
-
-
-
- 駐車場/月額
- -/ 100m
- 用途地域
- -
- 戸数
- 27戸 / -
- 取引態様
- 仲介
-
コンビニエンスストア
ファミリーマート 阿佐谷北四丁目店
180m(3分)
-
コンビニエンスストア
ローソン 杉並本天沼1丁目店
221m(3分)
-
コンビニエンスストア
ファミリーマート 阿佐谷北店
246m(4分)
-
スーパー
文化堂 阿佐ケ谷店
310m(4分)
-
スーパー
文化堂 阿佐ケ谷店
310m(4分)
-
スーパー
まいばすけっと 井荻駅東店
444m(6分)
エクセリア阿佐ヶ谷の基本情報
エクセリア阿佐ヶ谷の詳細情報
エクセリア阿佐ヶ谷で募集中の物件
周辺施設
近隣の物件
エクセリア阿佐ヶ谷











