/
【外観】
-
バストイレ別
-
室内洗濯機置場
-
TVモニタ付きインターホン
-
独立洗面台
-
浴室乾燥機
-
オートロック
-
ネット使用料無料
- 保証金
- -
- 敷引 / 償却
- - / -
- 敷金積み増し
- -
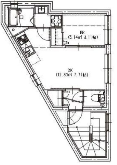
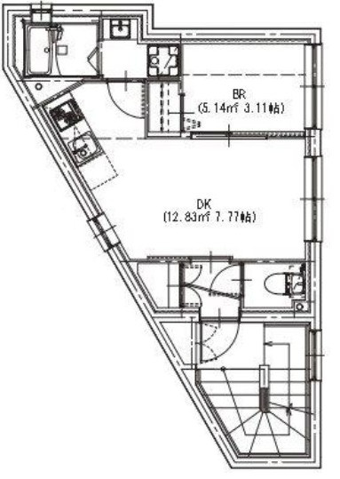
- 間取り / 詳細
- 1DK
洋室 3.1帖/DK 7.7帖 - 向き
- -
- 専有面積
- 26.98㎡
- バルコニー
(テラス)面積 - -
- 所在階 / 階建て
- 4階 / 4階建
- 建物構造
- 鉄筋コンクリート
- 築年月
- 2025年8月(新築)
- 種別
- 賃貸マンション
- 保険会社 / 料金
- 有 19,000円 / 2年
- 保証会社 / 料金
- 必加入 / その他
74400円 - 現況
- 完成済み
- 入居可能時期
- 即時
- その他条件
- 24時間サポート:1万6,500円 月次保証料:1,240円(月額)
- 設備条件
-
- 室内洗濯機置場 / フローリング / 都市ガス / 公営水道 / 公共下水 / 電気有 / 耐震構造 / ガスコンロ / システムキッチン / バス・トイレ別 / 浴室乾燥機 / 温水洗浄便座 / 洗面台 / シャワー / 独立洗面台 / エアコン / CATV / インターネット対応 / ネット使用料無料 / オートロック / TVモニタ付インターホン / 宅配ボックス / 角部屋 / 初期費用カード決済可
- 契約期間
- 2年
- 賃貸区分
- 一般
- 更新料
- 0.5ヶ月
- 更新事務手数料
- 5.5E-5万円
- 総戸数
- -
- 特優賃
- -
- 取引態様
- 仲介
- 物件番号
- 99518133
- 管理コード
- -
- 情報更新日
- 2025年12月08日
- 次回更新予定日
- 2025年12月15日
- 取扱会社
-
- 株式会社マッシュルーム 荻窪店
- 東京都杉並区荻窪5丁目28-12 サカエビル7階
- TEL:03-6383-5917
- 東京都知事 (3) 第096933号
- 備考
- お問い合わせやご質問は地元密着の荻窪駅前【マッシュルーム荻窪店】へ◎当社は全ての取扱い物件でご契約金クレジット払いが可能です^0^その他オンライン相談・内覧、現地待ち合わせなどお気軽にご相談下さい^^
-
スーパー
まいばすけっと 荻窪四面道店
153m(2分)
-
コンビニエンスストア
セブンイレブン 荻窪四面道東店
164m(3分)
-
コンビニエンスストア
ローソン 上荻一丁目店
244m(4分)
-
コンビニエンスストア
ファミリーマート 杉並上荻二丁目店
268m(4分)
-
スーパー
まいばすけっと 南荻窪3丁目店
507m(7分)
-
スーパー
西友 荻窪店
537m(7分)
物件の特徴
セールスポイント
設備充実の新築物件^0^鉄筋マンションでオシャレです^^
ポイント
3駅以上利用可 シャワー 2沿線利用可 温水洗浄便座 フローリング
担当者のコメント
基本情報
設備条件
その他
スワンクロスビルの他の部屋
周辺施設
近隣の物件
スワンクロスビル
11.9万円
5,000円
1DK(26.98㎡)












尾崎 慎治